Frequently Asked Questions
(Email thealevillagehall@hotmail.co.uk for availability and to obtain booking forms)
Is the hall licensed for the sale of alcohol?
A bar facility for private functions is provided by Theale Club. This can be hired for an extra charge of £55 (this includes a Membership fee to Theale Club) or £40 for existing Theale Club members.
What is the capacity of the hall?
For the safety of hirers and their guests, the following limitations apply under the fire regulations:
| Where dancing is permitted | 200 persons |
| Where seating at tables is permitted | 130 persons |
| Where a mixture of dancing and table areas is permitted | 185 persons |
The size of the hall is 15m x 12m. The height of the ceiling is 2.44m. Half of the hall is carpet, the other half is wooden with a small stage.

Are tables provided? We have 14 large rectangular tables (6 ft x 2 ft 6 ins) and 15 rectangular tables (4 ft x 2 ft 6 ins). There is no extra charge for using the tables. There are approximately 100 chairs.
What equipment does the kitchen have? The kitchen has a small electric cooker, a fridge/freezer, a microwave, a kettle, a tea urn, and two large teapots. There are approximately 50 cups and saucers and a selection of mugs. There are a few small dishes and a selection of plates and cutlery. However, quantities of items cannot be guaranteed; therefore, it is advisable to provide your own if you are catering for a large number.
Can we bring our own electrical equipment or bouncy castles, etc.? The Village Hall Management Committee DOES NOT take responsibility or provide insurance cover for any electrical appliances, bouncy castles, equipment, etc. that are brought in by hirers. Hirers must obtain their own insurance cover.
Do I need to bring tea towels, cleaning items? We provide a dishcloth, a washing-up sponge, and washing-up liquid, but you will need to bring your own tea towels.
Do I need to take the rubbish away or is a bin provided? We do provide a couple of rubbish sacks, however, you may wish to bring extra. A large wheelie bin is provided (situated outside the kitchen door) if this is full, we ask you to take any surplus rubbish away with you and also any glass or large cupboard boxes should be taken home for recycling.
Do I need to bring cleaning equipment? No, we provide a mop and bucket for spillages, and a vacuum cleaner, brooms etc. for cleaning the hall after use.
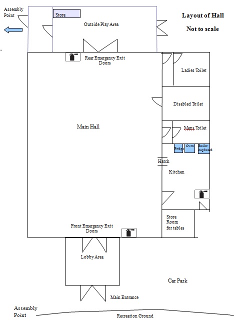
Is there disabled access to the hall? The hall has a slope at the front of the building for wheelchair access and a disabled toilet.
Can we gain access from the rear of the building? Yes, there is a padlocked, secure fence at the rear of the building with double gates which provide access for vehicles for unloading/loading purposes. Entrance into the hall is via fire doors at the rear of the building (a key is provided for the fire door for access into the building). The fire doors push open from inside the hall and may be secured open with the hooks attached.
What time should we leave the premises and can we return and clean the hall the next day? Music MUST STOP before midnight and the hall cleaned and vacated as soon as possible (preferably by 12 am). All hall hirers and their guests should leave the premises quietly as the hall is situated in a residential area. It is NOT POSSIBLE to return and clean the hall the next day. Setting up and clearing away/cleaning time should be included in the total number of hours the hall is hired for when booking. There will be an extra charge if this time is extended.
When do I pay the hire charge and how and when will I get the keys? The hirer will be contacted one month before the event for the hire charge payment and then contacted again, one or two days before the event, to arrange collection of keys/access to the hall.
When will my deposit be refunded? Your deposit will be refunded, in full, within 14 days as long as the hall and outside areas, at the front and rear of the building, are left clean and tidy.
Partial or whole deposits may be retained if the Terms and Conditions of hire are breached. This includes leaving the hall without cleaning; (all banners, balloons, blue tack, drawing pins etc should be removed); tables and chairs should be stacked and returned to the correct place; rubbish should be placed in the bin provided or removed from the premises. If guests smoke, the mounted ash trays provided at the front and rear of the building should be used. If cigarette ends, bottles, glasses or litter are left outside at the front or rear of the building part of your deposit will be retained to cover the cleaning cost.





You must be logged in to post a comment.